Q71超短型对夹球阀
一、Q71超短型对夹球阀概述:
Q71超短型对夹球阀参照意大利产品的特点,与普通不锈钢气动球阀相比,具有结构长度短、重量轻、安装方便、节省材料等显著的优点。对夹保温夹套球阀保温效果好。此外,阀座采用弹性密封结构,密封可靠,启闭轻松。设有耐火结构,万一发生火灾时,仍然能够可靠操作并具有良好的密封性。根据用户需要,可设有防静电结构。设置了90°开关带孔定位片,根据需要可以加锁,防止误操作。
二、Q71超短型对夹球阀用途:
Q71超短型对夹球阀适用于Class150、PN1.0~2.5MPa,工作温度 29~180℃(密封圈为增强聚四氟乙烯)或 29~300℃(密封圈为对位聚苯)的各种管路上,用于截断或接通管路中的介质,选用不同的材质,可分别适用于水、蒸汽、油品、硝酸、醋酸、氧化性介质、尿素等多种介质。
三、Q71超短型对夹球阀技术参数:
|
公称压力 |
1.0~2.5MPa |
|
适用介质 |
水、气、油品、天然气和酸碱腐蚀性介质 |
|
适用温度 |
-20~150~300℃ |
|
驱动方式 |
手动、气动、电动等 |
四、Q71超短型对夹球阀产品实拍:
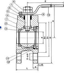
五、Q71超短型对夹球阀主要零件材料:
|
序号 |
零件名称 |
材质 |
|
1 |
阀体 |
不锈钢CF8M/CF8 |
碳钢WCB |
|
2 |
球 |
不锈钢316/304 |
不锈钢SS304 |
|
3 |
密封垫 |
聚四氟乙烯PTFE |
聚四氟乙烯PTFE |
|
4 |
阀杆 |
不锈钢316/304 |
不锈钢SS304 |
|
5 |
填料 |
聚四氟乙烯PTFE |
聚四氟乙烯PTFE |
|
6 |
定位锁 |
不锈钢SS304 |
不锈钢SS304 |
|
7 |
手柄 |
不锈钢SS304 |
不锈钢SS304 |
|
8 |
阀杆螺母 |
不锈钢SS304 |
不锈钢SS304 |
|
9 |
填料压套 |
不锈钢SS304 |
不锈钢SS304 |
|
10 |
手柄套 |
塑料 |
塑料 |
|
11 |
密封瓶帽 |
不锈钢316/304 |
不锈钢SS304 |
|
12 |
垫圈 |
聚四氟乙烯PTFE |
聚四氟乙烯PTFE |
六、Q71超短型对夹球阀主要连接尺寸及重量 (单位:mm)
|
SIZE |
1/2″ |
3/4″ |
1″ |
1 1/4″ |
1 1/2″ |
2″ |
2 1/2″ |
3″ |
4″ |
5″ |
6″ |
|
d |
15 |
19 |
23.5 |
30 |
36 |
45 |
58 |
67 |
76 |
100 |
125 |
|
L |
32 |
38.5 |
45 |
55 |
62 |
72 |
95 |
120 |
145 |
200 |
225 |
|
D |
95 |
105 |
115 |
135 |
145 |
160 |
180 |
195 |
215 |
245 |
280 |
|
D1 |
65 |
75 |
85 |
100 |
110 |
125 |
145 |
160 |
180 |
210 |
240 |
|
D2 |
45 |
55 |
65 |
78 |
85 |
100 |
120 |
135 |
155 |
185 |
210 |
|
H |
62 |
70 |
79 |
86 |
92 |
102 |
158 |
172 |
187 |
200 |
240 |
|
E |
110 |
125 |
135 |
150 |
150 |
180 |
250 |
300 |
350 |
650 |
840 |
|
b |
14 |
14 |
16 |
16 |
18 |
20 |
22 |
24 |
24 |
26 |
26 |
|
z-d1 |
4-14 |
4-14 |
4-14 |
4-18 |
4-18 |
4-18 |
4-18 |
8-18 |
8-18 |
8-18 |
8-23 |
|
f |
2 |
2 |
2 |
3 |
3 |
3 |
3 |
3 |
3 |
3 |
3 |
七、Q71超短型对夹球阀安装实例: