主安全阀原理特点及安装说明
一、主安全阀概述:
A49H主安全阀主要用于电站锅炉、压力容器、减温减压装置上使用,防止压力超过允许最高压力值,保证设备安全运行。当介质压力升高到整定压力时,冲量安全阀打开,介质从脉冲管进入主安全阀的活塞室,推动活塞下降,使阀门自动打开,当冲量阀关闭时,阀瓣又自动关闭。密封面用钴基铬镍不锈钢堆焊而成,阀瓣经热处理,提高了耐磨性和抗冲蚀性。
 |
 |
|
A49H主安全阀 |
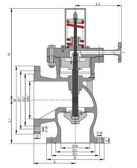
A49H主安全阀结构图 |
二、主安全阀原理特点:
当介质压力升高到整定压力时,冲量安全阀打开,介质从脉冲管进入主安全阀的活塞室,推动活塞下降,使阀门自动打开,当冲量阀关闭时,阀瓣又自动关闭。密封面用钴基铬镍不锈钢堆焊而成,阀瓣经热处理,提高了耐磨性和抗冲蚀性。
三、主安全阀安装说明:
1、阀门必须垂直安装在设备的最高位置。
2、排汽管的最低点应考虑疏水,以免排汽时产生水击。
3、主安全阀紧固在支座上,支座承受主安全阀排汽时产生的反座力。
4、排汽管应有专门吊架,排汽管重量不得加在主安全阀上,主安全阀与排汽管之间的连接法兰应消除任何的附加预应力。