您当前的位置: 主页 > 新闻中心 > 行业新闻 >

    JDQ11Y内螺纹气动程控切断阀

    来源:http://www.hsfamen.com    2015-12-25 12:12:10

    一、内螺纹气动程控切断阀概述:
       JDQ11Y内螺纹气动程控切断阀是一种能在各种管路上做远距离、快速开启和切断的阀门。
    内螺纹气动程控切断阀
    二、内螺纹气动程控切断阀性能规范:
    规格(DN) 15-200 MPa
    公称压力 1.6
    密封试验压力 1.1(倍)
    阀体强度试验压力 1.5(倍)
    工作温度(℃) -40∽100 / -40∽425
    适用介质 水、蒸汽、油品、气体
    结构长度 GB12221-89/ GB12233
    法兰标准 JB/T79-94
    三、内螺纹气动程控切断阀作用原理及结构说明:
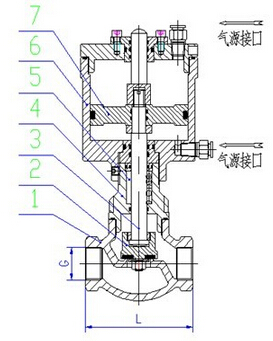
       当控制器按事先编好的程序对某个气源换向阀输出一个信号,该换向阀动作,使带压仪表气源通过换向阀的切换进入气动执行机构的气缸上腔或下腔,推动活塞运动使阀们开启或关闭。阀门的操作连接方式(如图所示)。
    气动程控切断阀作用原理及结构说明

    四、内螺纹气动程控切断阀主要外型与连接尺寸(参照构图)
    DN 15 20 25 32 40 50 65
    L 90 100 120 140 170 200 260
    G 1/2 3/4 1 11/4 11/2 2 21/2
    五、内螺纹气动程控切断阀主要零件材料:
    内螺纹气动程控切断阀主要零件材料
    1、阀体 WCB
    2、阀瓣 WCB
    3、阀杆 305
    4、上盖 WCB
    5、填料 F4
    6、气缸 WCB/QT450
     六、保管、安装及使用的注意事项:
    1、阀门通路两端必须加防护盖,存放在干燥、通风的室内,如长期存放应经常检查,防止锈蚀;
    2、阀门在安装前不要拿掉防尘盖,使阀内无污物存在;
    3、阀门可安装在水平或垂直的管道上使用,安装时去掉防尘盖,管路先用空气吹干净,以免污物带进阀腔内
     
上一篇:球阀结构性能原理及分类             下一篇:CQA-25P槽车球阀

  •    
    展开