

H77型对夹式止回阀
| 型 号 | 公称压力 | 试验压力PS(MPa) |
工作温度 (℃) |
适用介质 | |
| PN(MPa) | 壳体 | 密封 | |||
|
H77X H77H H77Y H77W |
1.0 | 1.5 | 1.1 |
软密封: 100~225 硬密封 200~550 |
水、 油品、 气体、 硝酸等 |
| 1.6 | 2.4 | 1.76 | |||
| 2.5 | 3.75 | 2.75 | |||
| 1.0 | 6.0 | 4.4 | |||
| 6.4 | 9.6 | 7.0 | |||
| 零件名称 | 材 料 | ||||
| H77X-10C、25 16、40 | H77H-16C、40 25、64 | H77Y25I 40I164I | H77W10C、25 16C、40 | H77W-10P、25P 16P、40P | |
| 阀体、蝶板 | 铸钢WCB | 铬钼钢 | 铸钢WCB | lCrl8Ni9Ti | |
| 阀杆 | 2Crl3 | lCrl8N19Tl | 20r13 | ||
| 阀体密封副 | 堆焊合金钢 | 堆焊硬质合金 | |||
| 助关弹簧 | lCrl8N19Ti | 耐热合金 | 1Crl8Ni9Ti | ||
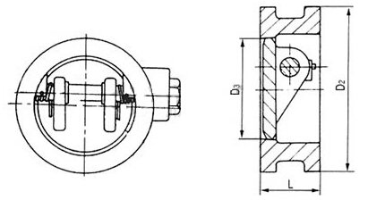
![]() |
![]() |
|
公称通径 DN(mm) |
L |
D2 |
D3 |
公称通径 DN(ram) |
L |
D2 |
D3 | ||
| H77X |
H77H H77Y H77W |
H77X |
H77H H77Y H77W |
||||||
| 50 | 43 | 100 | 43 | 46 | 400 | 140 | 485 | 376 | 390 |
| 80 | 64 | 1 05 | 7l | 80 | d50 | 152 | 545 | 427 | 427 |
| 100 | 64 | 155 | 91 5 | 94 | 500 | 152 | 608 | 479 | 490 |
| 125 | 70 | 185 | 115 | 118 | 600 | 178 | 718 | 579 | 588 |
| 150 | 76 | 210 | 14l | 145 | 700 | 229 | 800 | 675 | 686 |
| 200 | 89 | 265 | 191 | 200 | 800 | 241 | 905 | 774 | 784 |
| 250 | 114 | 320 | 230 | 250 | 900 | 241 | 1005 | 875 | - |
| 300 | 114 | 375 | 290 | 300 | 1000 | 300 | lll5 | 974 | - |
| 350 | 127 | 435 | 340 | 340 | 1200 | 360 | 1325 | 1165 | - |