

PH44H排渣止回阀工作原理及特点

| 型号 | 公称压力PN | 试验压力/MPa | 工作温度/℃ | 工作压力/MPa | 适用介质 | |
| 壳体 | 密封 | |||||
| PH44H-10C | 1.O | 1.5 | 1.1 | ≤200 | 10 | 灰渣混合物 |
| PH44H-16C | 1.6 | 2.4 | 1.76 | 16 | ||
| PH44H-25 | 2.5 | 3.8 | 2.8 | 2.5 | ||

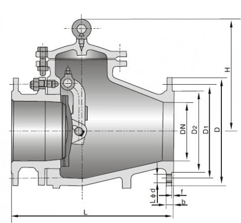
| 型 号 |
公称通径 DN(mm) |
主 要 尺 寸(mm) |
重 量 (Kg) |
|||||||
| L | D | D1 | D2 | Z-φd | b | f | H | |||
| PH44H-10C | 80 | 241 | 200 | 160 | 132 | 8-φ18 | 20 | 3 | 260 | 48 |
| 100 | 292 | 220 | 180 | 156 | 8-φ18 | 20 | 3 | 270 | 63 | |
| 150 | 356 | 285 | 240 | 212 | 8-φ22 | 22 | 290 | 120 | ||
| 200 | 495 | 340 | 295 | 268 | 8-φ22 | 22 | 345 | 200 | ||
| 250 | 622 | 395 | 350 | 320 | 12-φ22 | 24 | 412 | 250 | ||
| 300 | 698 | 445 | 400 | 370 | 12-φ22 | 26 | 468 | 320 | ||
| 350 | 787 | 505 | 460 | 430 | 16-φ22 | 28 | 4 | 524 | 400 | |
| 400 | 900 | 565 | 515 | 482 | 16-φ26 | 30 | 600 | 517 | ||
| 450 | 918 | 615 | 565 | 532 | 20-φ26 | 32 | 670 | 610 | ||
| 500 | 978 | 670 | 620 | 585 | 20-φ26 | 34 | 750 | 705 | ||
| PH44H-16C | 80 | 241 | 200 | 160 | 132 | 8-φ18 | 20 | 3 | 260 | 48 |
| 100 | 292 | 220 | 180 | 156 | 8-φ18 | 20 | 270 | 63 | ||
| 150 | 356 | 285 | 240 | 212 | 8-φ22 | 24 | 290 | 130 | ||
| 200 | 495 | 340 | 295 | 268 | 12-φ22 | 24 | 345 | 210 | ||
| 250 | 622 | 405 | 355 | 320 | 12-φ26 | 26 | 412 | 260 | ||
| 300 | 698 | 460 | 410 | 370 | 12-φ26 | 28 | 4 | 468 | 330 | |
| 350 | 787 | 520 | 470 | 429 | 16-φ26 | 30 | 524 | 415 | ||
| 400 | 900 | 580 | 525 | 480 | 16-φ30 | 32 | 600 | 532 | ||
| 450 | 918 | 640 | 585 | 548 | 20-φ30 | 34 | 670 | 625 | ||
| 500 | 978 | 715 | 650 | 609 | 20-φ30 | 36 | 750 | 720 | ||
| PH44H-25 | 80 | 318 | 200 | 160 | 132 | 8-φ18 | 24 | 3 | 260 | 48 |
| 100 | 356 | 235 | 190 | 156 | 8-φ22 | 24 | 270 | 65 | ||
| 150 | 444 | 300 | 250 | 212 | 8-φ26 | 28 | 290 | 140 | ||
| 200 | 535 | 360 | 310 | 278 | 8-φ26 | 30 | 4 | 345 | 230 | |
| 250 | 622 | 425 | 370 | 335 | 8-φ26 | 32 | 412 | 280 | ||
| 300 | 711 | 485 | 430 | 390 | 8-φ30 | 34 | 648 | 350 | ||
| 350 | 838 | 555 | 490 | 450 | 8-φ33 | 38 | 524 | 440 | ||
| 400 | 864 | 620 | 550 | 505 | 8-φ36 | 40 | 600 | 550 | ||
| 450 | 978 | 670 | 600 | 555 | 8-φ36 | 42 | 670 | 650 | ||
| 500 | 1016 | 730 | 660 | 615 | 8-φ36 | 44 | 750 | 745 | ||