

YB410、YB416、YB425型减压稳压阀
| 公称压力 | 1.0~2.5MPa |
| 公称通经 | 15~400mm |
| 适用介质 | 空气或非腐蚀性液体 |
| 适用温度 | 0~90℃ |
| 法兰标准 | GB/T 1724.6 GB/T 9113 |
| 试验标准 | GB/T 13927 AP1598 |
| 零件名称 | 弹簧罩、阀体、阀盖 | 橡胶膜片 | 密封垫 | 调节弹簧 | 活塞、缸套 | 阀杆 |
| 材料 | 铸铁、球铁、铸钢 | 尼龙强化橡胶 | 丁腈橡胶 | 硅锰钢 | 不锈钢 | 铜、不锈钢 |
![]() |
![]() |
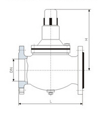
| DN | 15 | 20 | 25 | 32 | 40 | 50 | 65 | 80 | 100 | 125 | 150 | 200 | 250 | 300 | 350 | 400 |
| L | 108 | 117 | 127 | 140 | 165 | 203 | 216 | 241 | 292 | 330 | 356 | 495 | 622 | 698 | 787 | 914 |
| H | 105 | 105 | 115 | 120 | 165 | 165 | 190 | 250 | 274 | 350 | 368 | 395 | 433 | 475 | 520 | 570 |