您当前的位置: 主页 > 新闻中心 > 行业新闻 >

    LPGK杠杆快开篮式过滤器

    来源:http://www.hsfamen.com    2016-05-26 22:05:07

    一、LPGK杠杆快开篮式过滤器概述:
       杠杆快开篮式过滤器是除去液体中少量固体颗粒的小型设备,可保护设备的正常工作,当流体进入置有一定规格滤网的滤筒后,其杂质被阻挡,而清洁的滤液则由过滤器出口排出,当需要清洗时,只要将可拆卸的滤筒取出,处理后重新装入即可,因此,使用维护极为方便。杠杆快开篮式过滤器主要由接管、主管、滤蓝、法兰、法兰盖及紧固件等组成。当液体通过主管进入滤蓝后,固体杂质颗粒被阻挡在滤蓝内,而洁净的流体通过滤篮、由过滤器出口排出。当需要清洗时,旋开主管底部螺塞,排净流体,拆卸法兰盖,清洗后重新装入即可。因此,使用维护极为方便。
    LPGK杠杆快开篮式过滤器 LPGK杠杆快开篮式过滤器2
    二、LPGK杠杆快开篮式过滤器工作原理:
    杠杆快开篮式过滤器主要由接管、桶体、滤网、法兰、法兰盖及紧固件等组成。当液体通过主管进入滤网后,固体杂质颗粒被阻挡在滤网内,而洁净的流体通过滤网、由过滤器出口排出。当需要清洗时,旋开主管底部排污口螺塞,排净流体,拆卸法兰盖,取出滤网清洗后重新装入即可。因此,使用维护清理极为方便。
    三、LPGK杠杆快开篮式过滤器产品特点:
    1、过滤精度高,可根据客户需求配置过滤网的精细度。
    2、工作原理简单、结构也不复杂,容易安装、拆卸和维护。
    3、设备易损件少,无耗材,运行维护费用低,操作管理简单。
    4、稳定生产工艺流程,保护仪器仪表和机械设备,维护生产的安全和稳定。
    5、滤网采用不锈钢双层网结构坚固耐用具有结构先进、流阻小、排污方便等特点。
    6、内腔设有三道加强筋用于防止滤网变形有效地缓解了由于过滤器内的污物过多而造成的内外高负压力差。
    四、LPGK杠杆快开篮式过滤器零部件材料:
    序号 零件名称 材料名称
    1 壳  体 WCB 304 304L 316 316L
    2 法  兰 WCB 304 304L 316 316L
    3 滤  网 304、304L、316、316L
    4 螺  柱 35CrMoA 304 304L 316 316L
    5 螺  母 35 304 304L 316 316L
    6 密封件 柔性石墨、聚四氟乙烯
    7 阀  盖 WCB 304 304L 316 316L
    8 滤  篮 304、304L、316、316L
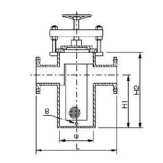
    五、LPGK杠杆快开篮式过滤器外形尺寸:
    LPGK杠杆快开篮式过滤器结构图
    口径DN Φ L H1 H2 B
    25 89 220 160 260 R1/2" 
    32 89 220 165 270
    40 114 280 180 300
    50 114 280 180 300
    65 140 330 220 350
    80 168 340 260 400
    100 219 420 310 470 R3/4" 
    150 273 500 430 620
    200 325 560 530 780
    250 426 660 640 930
    300 478 750 840 1200
    六、LPGK杠杆快开篮式过滤器安装示意图:
    LPGK杠杆快开篮式过滤器安装示意图
     

  •    
    展开