一、ZZYP自力式压力调节阀用途与特点:
ZZYP自力式压力调节阀是不需要外加能源,利用被调介质自身能量面实现自动调节的执行器产品。该产品的特点是能在无电、无气的场所工作,同时又节约了能源,压力设定值在运行中可随意调整。采用快开流量特征,动作灵敏、密封性能好,因而它广泛应用于石油、化工、电力、治金、食品、轻纺等领域。是工业设备中用气体、液体及蒸汽介质减压、稳压(用于阀后调节),或泄压、稳压(用于阀前调节)的自动控制。
二、ZZYP自力式压力调节阀工作原理原理:
在ZZYP自力式压力调节阀的工作过程中,当被调介质压力升高时,先导阀中的弹簧压力增大,推动先导阀芯向上移动,打开主阀瓣。同时,被调介质通过先导阀进入主阀瓣的底部空间,产生向上的推力,使主阀瓣离开阀座,打开主阀门。随着压力的升高,主阀瓣会逐渐打开,直到达到预设的压力值。当被调介质压力降低时,先导阀中的弹簧压力减小,推动先导阀芯向下移动,关闭主阀瓣。同时,被调介质通过先导阀进入主阀瓣的底部空间,产生向下的推力,使主阀瓣与阀座接触,关闭主阀门。随着压力的降低,主阀瓣会逐渐关闭,直到达到预设的压力值。
三、ZZYP自力式压力调节阀技术参数:
四、ZZYP自力式压力调节阀实拍图:

| 
|

| 
|
| ZZYP自力式压力调节阀(膜片式) | ZYP自力式压力调节阀(活塞式) |
五、ZZYP自力式压力调节阀外形结构图:

|
| ZZYP自力式压力调节阀(带冷凝管,走蒸汽) ZYP自力式压力调节阀(标准型) |
六、ZZYP自力式压力调节阀外形尺寸:
七、ZZYP自力式压力调节阀安装注意事项:
1、阀在常温下(≤80℃)气体或低粘度液体介质中使用时,此时与通常的气动薄膜调节阀相同为直立安装在水平管道上,如下图所示:
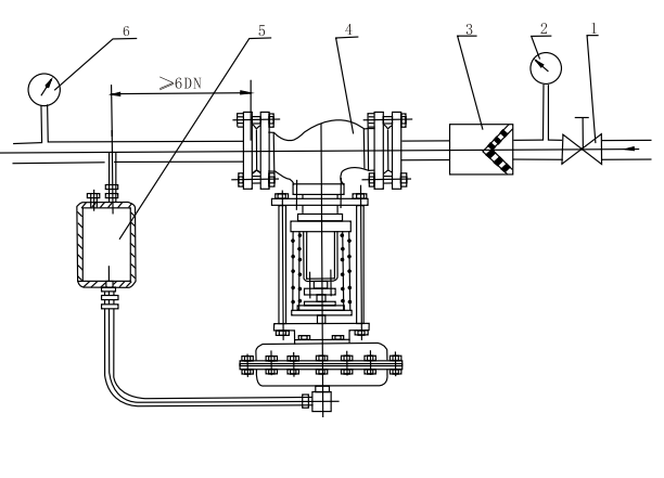
2、如果使用的介质为蒸汽时,自力式压力调节阀需倒立安装在水平管道上,如下图所示: